1315 views
0 watching

The description is a guide only and based on a walk-around inspection. It reflects the opinion of the Grays' book-in staff which may take into account the age of the item. Grays does not test the item/s or test their inclusion/s. As a result, there may be other damage or issues that have not been identified in the description or photographs. Grays does not make any warranties as to the operation of any feature or inclusion referred to in this description

Overview

Condition Used
GST: Exclusive (see below note)
Buyers premium
Buyers premium
Variable
Final Bid Price Buyers Premium
$0 - $5,000 16.5%
$5,001+ 9%

Learn more

Location 591 Boundary Rd, Truganina VIC 3029
Category Construction, Scaffolding & Formwork
Sales Support Customer Service or (p) 1300 710 629
Lot ID 0001-3033199
Part of Sale Mobile Plant & Equipment Auction - VIC Pick Up
Warranty

Description

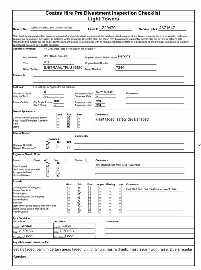
2019 Allight Mobile Lighting Tower

  • 2019 Allight Mobile Lighting Tower Twin Cylinder Diesel. Model Plant. DOM 12/19. VIN 6JETRAMLTKLU12839. ATM 1600 kg. Hours 6042. Tyres 205R16 6 Stud Rims. Stabilisers. 50 mm Coupling.
  • Dimensions: 5570 x 2180 x 2450 mm (h) overall
  • Damage Notes: Refer to inspection checklist. Dents and scratches. General wear and tear.
  • Fleet #: 1229470
  • Warehouse Location: T YARD

Item condition is `Used`, please refer to Sale Terms tab for definition. This item is sold on an `As Is` and `Where Is Basis`

Location: 591 Boundary Rd, Truganina VIC 3029

(SN:6JETRAMLTKLU12839) (116448-101)

GST Note: GST will be added to the final bid price of this item. GST will be added to the buyers premium.

Debit Card / Credit Card / PayPal surcharge fee may apply. See User Agreement

Plant_Hazard_Report

FAQs

  • What is Autobid?
  • What is 'Going, Going, Gone'?
  • What is Buyer's Premium?
  • What if I change my mind?
  • How do I cancel my bid?
  • Can I inspect items before bidding on them?

For answers to these questions and more, please visit Support

Yellowgate - Rent Now, Buy Later

Yellowgate - Rent Now, Buy Later

Grays has partnered with Yellowgate to help you gear up with $30,000 to $500,000 worth of plant and equipment with Yellowgate’s Rent Now, Buy Later solutions*.

  • 12 month rental term
  • Buy Anytime
  • Return after 12 months
  • 100% tax deductible
  • Off balance sheet
  • Low upfront costs

4 easy steps to get started:

  1. Verified ID
  2. Verified Business
  3. Verified Work Source
  4. Verified Equipment

Click here for more information

*Important information: Business customers only. Finance provider is Yellowgate Group Pty Ltd ACN 647 366 854 ("Yellowgate"). All applications for credit are subject to credit approval criteria. Terms and conditions, fees and charges apply. Grays eCommerce Group Limited ACN 125 736 914 (“Grays”) does not provide or arrange finance. By clicking this link you will be redirected to Yellowgate’s website where you may complete an application for finance.

This information (a) is current as at 21/04/2021, (b) is subject to change, (c) is provided for general information only, (d) does not take into account your personal situation, and (e) does not constitute financial and/or tax advice. You should consider whether the information is appropriate to your needs, and where appropriate, seek professional advice from financial, legal and taxation advisers. The information has been prepared by Yellowgate and Grays does not warrant its accuracy. Although every effort has been made to verify the accuracy of the information, Yellowgate and Grays, and each of their officers, employees and agents disclaim all liability (except for any liability which by law cannot be excluded), for any error, inaccuracy, or omission from the information or any loss or damage suffered by any person directly or indirectly through relying on this information.

As a referrer, Grays eCommerce Group Limited ACN 125 736 914 will receive a financial benefit (referral fee) from Yellogate for each customer that completes a purchase of equipment using Yellowgate’s Rent Now, Buy Later funding solution.

© 2021 Grays eCommerce Group Limited ACN 125 736 914 is a wholly owned subsidiary of Grays.com Pty Ltd ACN 634 636 310.

Payment

We accept the following methods of Payment:

Credit Card

  • 1.5% surcharge applies to Mastercard & VISA transactions
  • 2.5% surcharge applies to American Express & Diners Club transactions
  • No other cards are accepted
  • Invoices totalling less than $10,000 will be automatically debited from the card nominated within your account
  • Invoices totalling in excess of $10,000 can be paid in-person at any Grays office

PayPal

  • 1.5% surcharge applies to PayPal transactions
  • Only accepted for invoices totalling less than $10,000 where elected as your preferred payment method within your account

EFT (Direct Deposit)

  • For invoices totalling in excess of $10,000. Payment must be made in full within two business days of the auction closing.
  • Please ensure to state your invoice number as the payment reference and email proof of the remittance to accountsreceivable@grays.com.au
  • As EFT transfers can take up to 2 business days to clear, please contact Grays prior to collecting your purchase to confirm receipt of clear funds

Cash, Bank Cheques and Personal Cheques are not accepted payment methods.

Please see below for further information:

Payments

Payment Enquiries

For invoice payment enquiries only, please email accountsreceivable@grays.com.au

For all other enquires, please email industrialcs@grays.com.au

What is Product Condition?

The Condition of each product is stated on its Lot Page, and we strongly urge you to familiarise yourself with the Condition before bidding. This is because Grays sells a wide range of products in a variety of Conditions on behalf of our Vendors.

It's important that you read the Lot Description for possible additional information on the Condition of the product including any applicable warranty details. You should take the Condition and the Lot Description into account when you place your bid as we do not offer refunds if you change your mind about your purchase.

Information regarding Product Conditions can be found by clicking here Shopping With Grays

Online Auction Closing "Going, Going, Gone!"

Typically, auctions end at their posted closing time. There are some exceptions to this however, for example if there are any bids placed on a particular lot within 10 minutes of the auction closing time (the "Going, Going, Gone!" period). When this happens, the auction will be extended until there are no more bids placed within ten minutes of the last successful bid.

There is no limit to the number of times an online auction can be extended. This makes Grays work more like a live auction where the bidding does not stop as long as there is still interest in the product, rather than assigning an arbitrary cut-off time. To ensure that you do not get outbid, make sure you monitor the auction until you have won the item or enter an "AUTOBID" that you think will win!

Terms & Conditions of Sale

PLEASE NOTE: THIS IS AN AUCTION SALE. ALL ASSETS IN THIS SALE ARE SOLD “AS IS” WITHOUT WARRANTY AND COOLING OFF PERIOD

By registering and bidding you have agreed to our terms and conditions of sale. All bidding is subject to the online "Users Agreement".

The terms and conditions of the online auctions may change from time to time. Please ensure you clearly read the special terms and conditions contained in this page and also in the users agreement. Continuing to use the online auction service following amendments to these terms & conditions will constitute your acceptance of the new terms & conditions applying to this service.

Terms & Conditions can be found by clicking here Terms & Conditions

Buyers Please Note:

  • Please take care when making a bid as once your bid is placed, it cannot be withdrawn and will not be cancelled unless there are exceptional circumstances (as determined by Grays). If you are unsure do not bid as no refunds will be given unless there are exceptional circumstances (as determined by Grays).
  • By registering and bidding, you have agreed to Grays terms and conditions of sale. If necessary please familiarise yourself with them prior to bidding on any items in this auction.
  • The terms and conditions of the online auctions may change from time to time. Please ensure you clearly read the special terms and conditions contained in this page and also in the bidders agreement. Continuing to use the online auction service following amendments to these terms & conditions will constitute your acceptance of the new terms & conditions applying to this service.
  • Grays staff are onsite for security purpose only, please make sure you have people to help you load your purchases and provide suitable transport.
  • Collection can only take place once cleared funds have been received.

Grays guarantees that all vehicles/boats/motorbikes (Vehicle(s)) in this sale are sold with clear title, however in this respect note that:

  • Bidders may find when they do perform a PPSR check (highly recommended) in many cases the vehicles do have a security interest registered against them, which will be lifted as soon as the relevant vehicle is sold and monies are cleared in the secured party’s/security holder’s account; and
  • Please allow up to 10 business days for the security interest to be removed.

GST Refund for Exports

To claim a GST refund for an asset that has been exported, you must:

  • Notify us of your intent to export within five (5) days of the Sale closing date
  • Pay your invoice in full (including any GST)
  • Supply proof of export of the asset within 60 days of the invoice payment date. Acceptable documents are a Bill of Lading, Sea Waybill or Air Waybill
  • Please note that refund of GST on Buyers Premium (a service) is only available to overseas buyers

GST & Buyers Premium

GST Exclusive & Inclusive Examples

A Buyers premium applies to all lots purchased in this auction. Please refer to the individual sale or lot descriptions for the applicable percentage.

GST Exclusive example:

  • Successful Bid Price is $109 + 20% Buyers Premium = $130.80 + 10% GST = invoice total of $143.88
  • Successful Bid Price is $5009 + 16.5% Buyers Premium = $5835.50 + 10% GST = invoice total of $6419.05
  • Successful Bid Price is $15,009 + 11% Buyers Premium = $16,659.99 + 10% GST= invoice total of $18,325.98
  • Successful Bid Price is $25,009 + 9% Buyers Premium = $27,259.81 + 10% GST= invoice total of $29,985.79

GST Inclusive example:

  • Successful Bid Price is $109 + 20% Buyers Premium = $130.80
  • Successful Bid Price is $5009 + 16.5% Buyers Premium = $5835.50
  • Successful Bid Price is $15,009 + 11% Buyers Premium = $16,659.99
  • Successful Bid Price is $25,009 + 9% Buyers Premium = $27,259.81

Variable Buyers Premium:A Variable Buyers Premium may apply to this sale, a Variable Buyers Premium will automatically adjust as the bid price reaches the above examples.

The Buyer’s Premium will be added to your final bid price.

Auction Conditions

This is an auction sale. All assets in this sale are sold on an "As Is - Where Is" basis.

Assets included in this sale may be used, therefore inspection is highly recommended prior to bidding. Photos and descriptions should be used as a guide only.

Please take care when making a bid as once your bid is placed, it cannot be withdrawn and will not be cancelled unless there are exceptional circumstances (as determined by Grays). If you are unsure do not bid as no refunds will be given unless there are exceptional circumstances (as determined by Grays).

Delivery is not an option for this sale. The removal of goods purchased is the buyers responsibility.

Motor Dealer Licence LMCT11156

Inspection and Collection

Location: 591 Boundary Road (entry via Palmers Rd), Truganina VIC 3029

Inspection: Inspections Available from 06/01/25 Monday - Friday between 9:00am - 3:30pm (Excluding Public Holidays).

Collection: Assets must be collected within 5 business days of the auction closing. Collection Available Monday - Friday between 9:00am - 3:30pm (Excluding Public Holidays).

Collection Notes:

  • Collections can only take place once cleared funds have been received.
  • Items remaining uncollected after the specified timeframe may be deemed abandoned and disposed of unless prior arrangements have been made with the respective contact listed on the sale.
  • Goods will only be released with the correct buyer details being provided (full buyer name, sale number, Lot number and photo ID).
  • Asset packaging and removal are the purchaser’s responsibility in the time frame specified for the sale.
  • During busy periods, extensive wait time may occur.
  • Please call Customer Service on 1300 710 629 to confirm lifting and loading capabilities for individual sites.
  • Please ensure you review the WHS tab to ensure you have a clear understanding of all safety requirements regarding the collection process.

Third Party Collection

If you wish to send a third party to collect your goods on your behalf, they will need:

  • A copy of your Winner's Email.
  • A scanned copy of your photo ID.
  • A letter signed by you authorising them to collect the goods on your behalf (Please refer to the Third-Party Collection Authorisation template below).
  • They will also be required to produce identification and sign for the goods on behalf of buyers acting as the authorised agent.
  • Please ensure you review the WHS tab to ensure you have a clear understanding of all safety requirements regarding the collection process.

Grays do not carry manual consignment notes nor complete them for third party carriers. Grays staff will not release the goods unless they carry the appropriate authority.

Please note: Grays are not responsible for the goods once they have been signed for. Problems relating to transportation are the responsibility of the third party acting on your behalf.

Third Party Collection Authority Form

Site Access

  • High Vis Vests are a mandatory requirement for all Grays sites.
  • Enclosed footwear is a mandatory requirement for all Grays sites.
  • Enclosed footwear is a mandatory requirement for all Grays vendor sites.
  • Grays may specify mandatory PPE required to be worn before entry is permitted. This equipment may include safety boots, safety glasses, hearing protection, hard hats, or any other item of PPE deemed necessary.
  • All persons entering the site must comply with any directions given by Grays staff, their representatives or the site controller.
  • Persons under the age of 16 years are not permitted on sites unless accompanied and supervised by a responsible adult.
NOTE:

Persons under 16 years are not permitted on Vendor sites Grays have assessed as high risk.

  • Please ensure you review the WHS tab to ensure you have a clear understanding of all safety requirements regarding the collection process.

Collection Compliance

  • Grays staff will not load a truck, trailer or vehicle that is assessed by them as inappropriate, this includes, but is not limited to,
  • Oversize
  • Overweight
  • Over height
  • Items that are fixed to a pallet, must remain this way when loading.
  • Items with manufactured lifting points, will only be lifted using these features.
  • Drivers
MUST

wait in the designated exclusion zone when loading procedures take place.

  • It is the responsibility of the buyer or third party to ensure they bring adequate manpower to manually load items into their vehicles, Grays staff are not permitted to assist with manual handling loading tasks.
  • It is the responsibility of the buyer, or third party to adequately tie down their load once loaded, Grays staff are not permitted to participate in the tie down procedure.
  • Please ensure you review the WHS tab to ensure you have a clear understanding of all safety requirements regarding the collection process.

Safety

Safety

Please refer to the WHS tab for more information regarding safety requirements at Grays sites.

Excavation Equipment Products Transport Information

Excavation Equipment Products Transport Information

Below is a table detailing minimum transport requirements for Excavation Equipment products:

Surplus Equipment to Sell?

Surplus Equipment to Sell?

For an obligation free appraisal and quote or to learn more about selling at Grays, please visit SELL AT GRAYS

Why Grays?

Why Grays?
  • 2M+ Registered Users
  • 1M+ Unique Visitors Per Month
  • National Marketplace
  • 24 Hour Bidding

Site Access

  • High Vis Vests are a mandatory requirement for all Grays sites.
  • Enclosed footwear is a mandatory requirement for all Grays sites.
  • Enclosed footwear is a mandatory requirement for all Grays vendor sites.
  • Grays may specify mandatory PPE required to be worn before entry is permitted. This equipment may include safety boots, safety glasses, hearing protection, hard hats, or any other item of PPE deemed necessary.
  • All persons entering the site must comply with any directions given by Grays staff, their representatives or the site controller.
  • Persons under the age of 16 years are not permitted on sites unless accompanied and supervised by a responsible adult.
NOTE: Persons under 16 years are not permitted on Vendor sites which Grays have assessed as high risk.
  • No smoking or Vaping.
  • No pets and animals.
  • Follow traffic management plan and obey the speed limit of 10km/h.
  • Follow instructions of Grays staff and comply with the conditions of entry.
  • Grays reserves the right to refuse entry.

Collection Compliance

  • Grays staff will not load a truck, trailer or vehicle that is assessed by them as inappropriate, this includes, but is not limited to,
  • Oversize
  • Overweight
  • Over height
  • Items that are fixed to a pallet, must remain this way when loading
  • Items with manufactured lifting points, will only be lifted using these features
  • Drivers
MUST

wait in the designated exclusion zone when loading procedures take place.

  • It is the responsibility of the buyer or third party to ensure they bring adequate manpower to manually load items into their vehicles, Grays staff are not permitted to assist with manual handling loading tasks
  • It is the responsibility of the buyer, or third party to adequately tie down their load. Once loaded, Grays staff are not permitted to participate in the tie down procedure

Lifting, Loading & unloading Contractor Requirements

Crane Operations Require:

  • Licence verification.
  • SWMS for the operation to be conducted.
  • Confirmation of Workers Compensation Certificate of Currency.
  • Confirmation of Public Liability Certificate of Currency.

Truck Crane / Hiab Operations Require:

  • Licence verification.
  • SWMS for the operation to be conducted on request.
  • Confirmation of Workers Compensation Certificate of Currency.
  • Confirmation of Public Liability Certificate of Currency.

Forklift Operations Require:

  • Licence verification.
  • Exclusion zone plan verification.
  • Confirmation of Workers Compensation Certificate of Currency.
  • Confirmation of Public Liability Certificate of Currency.

Operators of Plant:

Contractors engaged to move plant and equipment by a buyer or vendor must:

  • Follow exclusion zone requirements.
  • Be competent to operate the equipment being loaded.
  • Ensure all CHAIN OF RESPONSIBILITY (COR) requirements are understood and adhered to.

Grays Site Trade Requirements

Disconnection of Electrical equipment

All work carried out must be completed by a licenced electrician and is required to provide on request:

  • High Risk License
  • SWMS for the operations assessed to be high risk.
  • Confirmation of Workers Compensation Certificate of Currency.
  • Confirmation of Public Liability Certificate of Currency.

Disconnection of Mains Gas & equipment

All work carried out must be completed by a licenced Gas fitter / Plumber and is required to provide on request:

  • High Risk License.
  • SWMS for the operations assessed to be high risk.
  • Confirmation of Workers Compensation Certificate of Currency.
  • Confirmation of Public Liability Certificate of Currency.

Disconnection of Mains Water & equipment

All work carried out must be completed by a licenced Plumber and is required to provide on request:

  • High Risk License.
  • SWMS for the operations assessed to be high risk.
  • Confirmation of Workers Compensation Certificate of Currency.
  • Confirmation of Public Liability Certificate of Currency.

Disconnection of Refrigeration and Air Conditioning equipment

All work carried out must be completed by a licenced Refrigeration Mechanic and is required to provide on request:

  • High Risk License.
  • SWMS for the operations assessed to be high risk.
  • Confirmation of Workers Compensation Certificate of Currency.
  • Confirmation of Public Liability Certificate of Currency.
  • Proof any released gasses are captured, stored, transported and disposed of as per legislative requirements.

Disconnection of Electrical equipment

All work carried out must be completed by a licenced electrician and is required to provide on request:

  • High Risk License.
  • SWMS for the operations assessed to be high risk.
  • Confirmation of Workers Compensation Certificate of Currency.
  • Confirmation of Public Liability Certificate of Currency.

Dismantling and decommissioning of equipment

All work carried out must be completed by Competent Trades and are required to provide on request:

  • High Risk License.
  • SWMS for the operations assessed to be high risk.
  • Confirmation of Workers Compensation Certificate of Currency.
  • Confirmation of Public Liability Certificate of Currency.

Working at Heights

Working at Heights is when there is a danger a person could fall from one level to another at a height of 1.8 metres or greater. This includes the risk of a fall from:

  • in or on an elevated workplace from which a person could fall, or
  • in the vicinity of an opening through which a person could fall, or
  • in the vicinity of an edge over which a person could fall, or
  • on a surface through which a person could fall, or
  • in any other place from which a person could fall.

Workers who have been identified using the description above as to be Working at Heights must:

  • Provide SWMS.
  • Demonstrate harnesses etc are compliant.
  • Use purpose-built equipment.

General Site Requirements

General Site Requirements

All persons attending a Grays site, or a Grays vendor site must:

  • Ensure all work be completed in a manner compliant with all Work Health & Safety legislation.
  • Obey all instructions given by Grays staff or Grays representatives, including any direction to stop work for safety reasons.
  • Remove all waste generated in the activity they have taken part in.
Coates Hire

2019 Allight Mobile Lighting Tower

Closed: 30 April 2025 20:00 AEST

Sold for $2,610
The auction has ended. See similar items.
Bids (9 bids)
Buyers premium
Variable
Final Bid Price Buyers Premium
$0 - $5,000 16.5%
$5,001+ 9%

Learn more

buyers premium not included in the price. Excludes any Debit Card / Credit Card / PayPal surcharges that will apply. 

Customer Service Enquires about the item