0 views
0 watching
Bedrooms Bathrooms Car Spaces
6 3 8

Description

Property Details:

  • Property Type: Farm/Acreage
  • Bedrooms: 6
  • Bathrooms: 3
  • Car Spaces: 8
  • Land Size (ha): 3.24
  • Property Features: Study, Media Room, Pool, Solar, Shed, Garage

General Information:

``COORABELLA`` - THE JEWEL OF REDBANK

81 MATTHEW MITCHELL DRIVE, REDBANK

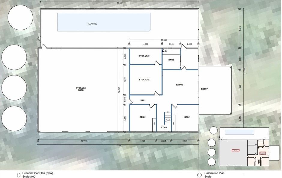
This property represents a once in a lifetime opportunity to fulfill your dreams of an idyllic rural life at your own country estate. Over the past 12 years the owners’ passion for creating beautiful spaces has resulted in expansive formal gardens, courtyards, and manicured grounds. A recent Hampton’s inspired renovation of the main residence, 20-meter indoor lap pool, temperature controlled wine storage, theatre/media room, industrial sized shed, separate guest accommodation and 8 acres of pristine Hastings Hinterland are just some of the features on offer at Coorabella.

Tucked away at the end of a cul-de-sac, Coorabella is situated in a truly private and tranquil setting that you will only be sharing with the local wildlife. Unrivaled in the region in terms of beauty and convenience, Redbank consists of gently undulating farmland only 5 minutes from Wauchope and 15 minutes from Port Macquarie.

No expense has been spared in the renovation of the main 4-bedroom residence which is now turn-key ready. The home is an entertainer’s delight with an open plan dining area and a large servery window accessing the outdoors. The kitchen is fit for a Master chef with 2 Smeg ovens, an induction cooktop, modern rangehood and large granite bench tops. A beautiful feature fireplace in the front sitting room complements the Tasmanian oak floors, ensuring warm and cosy winters.

The spacious master bedroom with feature window is complemented by a large walk-in-robe and double vanity ensuite bathroom. All bedrooms are blessed with an abundance of natural light and garden views, whilst the media room opens directly onto the manicured lawn. The laundry has large bench areas and an abundance of cupboard space. Beautiful bespoke botanical feature wall tiles throughout the home reflect the natural beauty that surrounds.

Separate guest accommodation provides a further 2 bedrooms with bathroom. The industrial sized shed can house 6 vehicles (in addition to the 2 car garage of the main residence) and contains multiple storage rooms suitable for a home-based office/business. A 20 meter indoor lap pool with a solar powered reverse cycle heat pump enables you to enjoy the benefits of swimming throughout the entire year.

Multiple courtyards and outdoor entertaining areas have been professionally landscaped taking inspiration from the formal gardens of Europe. Mature hedges, feature topiary trees, miniature citrus, mulberries, mango, macadamia, fruit trees and expansive seasonal garden beds ensure that you are able to enjoy the fruits of your labour in all seasons.

The meticulously maintained grounds of the estate include established avenue plantings of conifers, camphor laurels, jacarandas, golden pendas, ornamental pears and topiary lilli-pillies. A mix of natives and deciduous trees provide year-round interest. The top section of land has mature and well-maintained eucalyptus woodland. Irrigation can be delivered from a reliable bore and a dam at the front of the property. The property boundary is fully fenced with automatic remote access front gates.

Five water tanks provide ample storage of 112,500 litres fed by an expansive roof top catchment covering both the main dwelling and shed.

Key features:

8 acres of private paradise in tightly held Redbank

Turn-key ready Hampton’s home with separate guest accommodation

Resort-style living (heated indoor lap pool, theatre, wine cellar)

Magnificent gardens and manicured grounds

Solar system (8.2kW Fronius inverter and 11kW of panels)

Full Cat-6a data cabling throughout house/shed. C-Bus smart lighting in shed.

High speed fixed wireless NBN

Excellent water security (112,500 litres in tanks + 90,000 litres in swimming pool + bore + dam)

Super Treat aerated wastewater treatment septic system

Not flood prone (above the Hasting’s River flood plain)

Book your private inspection via email now to fully appreciate everything that this property offers. Video inspections also available for interstate and international buyers.

House internal: 261 sqm + courtyard 20.8 sqm

Shed internal: 350 sqm

Land: 8 acres

Rates: $2316 p.a.

Debit Card / Credit Card / PayPal surcharge fee may apply. See User Agreement

Inspection

Inspections by Appointment only

Sale Contract

Sale Contract

Auction Conditions

This is an auction sale. All assets in this sale are sold on an “As Is - Where Is” basis.

Photos and descriptions should be used as a guide only.

Please take care when making a bid as once your bid is placed, it cannot be withdrawn and will not be cancelled. All bids are unconditional.

The seller and the buyer agree to sign all documents and do everything else necessary to transfer the property to the buyer. The seller and the buyer each appoint the Auctioneer agent to sign the Contract of Sale on their behalf. The appointment is non-revocable.

Brett Garnett as Auctioneer 20349723

Bidders Guide

Prescribed Conditions of Sale by Auction

Payment

Please note that cash, personal or company cheques are not accepted.

  • 10% deposit payable from signing of contract
  • Settlement 30 days after exchange of contracts
  • All bids are unconditional
  • IMPORTANT NOTICE - Please be sure to read attached sales contract prior to bidding. No Grays invoice will be sent, contract of sale will be raised by Property Now to successful purchasers
  • Any payment enquiries, please email brett.garnett@grays.com.au

Price Guide

Disclaimer: This property is being sold by auction or by negotiation/expression of interest and therefore a price guide cannot be provided by Grays.com This website (and other external websites) may have filtered the property into a price bracket for website functionality purposes.Whilst all reasonable attempts have been made to verify the accuracy of the information provided, the Selling agents confirm that they cannot guarantee accuracy of the same and accept no liability (express or implied)in the event that any information contained in the document or provided within is inaccurate. Parties must ensure they make their own due diligence enquiries to satisfy themselves about the accuracy of the information.

Online Auction Closing "Going, Going, Gone!"

  • Typically, auctions end at their posted closing time. There are some exceptions to this however, if there are any bids placed on a particular lot within 10 minutes of the auction closing time (the "Going, Going, Gone!" period). It will be extended until there are no more bids placed within ten minutes of the last successful bid.
  • There is no limit to the number of times an online auction can be extended. This makes Grays work more like a live auction where the bidding does not stop as long as there is still interest in the product, rather than assigning an arbitrary cut-off time. To ensure that you do not get outbid make sure you monitor the auction until you have won the item or enter an "AUTOBID" that you think will win!

Terms & Conditions of Sale

PLEASE NOTE: THIS IS AN AUCTION SALE. ALL ASSETS IN THIS SALE ARE SOLD “AS IS” WITHOUT WARRANTY AND COOLING OFF PERIOD

By registering and bidding you have agreed to our terms and conditions of sale. All bidding is subject to the online "Users Agreement".

The terms and conditions of the online auctions may change from time to time. Please ensure you clearly read the special terms and conditions contained in this page and also in the users agreement. Continuing to use the online auction service following amendments to these terms & conditions will constitute your acceptance of the new terms & conditions applying to this service.

Terms & Conditions can be found by clicking here Real Estate Terms & Conditions

Buyers Please Note:

  • Please take care when making a bid as once your bid is placed, it cannot be withdrawn and will not be cancelled. If you are unsure do not bid as no refunds will be given.
  • By registering and bidding, you have agreed to Grays terms and conditions of sale. If necessary please familiarise yourself with them prior to bidding on any items in this auction.
  • The terms and conditions of the online auctions may change from time to time. Please ensure you clearly read the special terms and conditions contained in this page and also in the bidders agreement. Continuing to use the online auction service following amendments to these terms & conditions will constitute your acceptance of the new terms & conditions applying to this service.
  • 10% deposit payable from signing of contract
  • Settlement 30 days after exchange of contracts

Auction Support

Auction Support
PropertyNow

81 Matthew Mitchell Drive, Redbank NSW 2446

$2,750,000
This lot belongs to a Assets For Sale. Bidding is not available online. More information can be found on the sale page.
Property Now Enquires about the property